Wood and Food
 
Giulietta Boggio Bertinet - Morena Caputo

CONCORSO INSTANT HOUSE 2011, Federlegno
Premi: Menzione della giuria per uso materiali

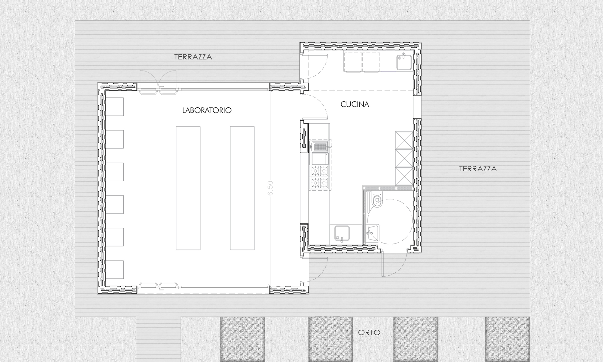
Una casa nel bosco come integrazione tra città e natura, profumi e sapori della cucina come luogo d'incontro tra popoli.

Il laboratorio di cucina multietnica non si propone unicamente di promuovere la conoscenza di piatti "tipici", ma anche di permettere alle persone di imparare a conoscere e riconoscere con tutti i sensi gli ingredienti che sono alla base di tutte le cucine, cercando di recuperare una sensibilita sensoriale nell'uomo.

Le "esperienze sensoriali" partono dal lavorare direttamente nell'orto stagionale posto esternamente al laboratorio che dal terreno arriva sino in copertura, in questo modo i fruitori avranno la possibilita di riconoscere le piante, il loro ciclo stagionale, saper riconoscere la bontà e la corretta maturazione delle verdure e degli ortaggi. Passando all'interno del laboratorio avranno la possibilità di approfondire gli aspetti sensoriali cercando di riconoscere gli odori, i sapori e le superfici degli alimenti.

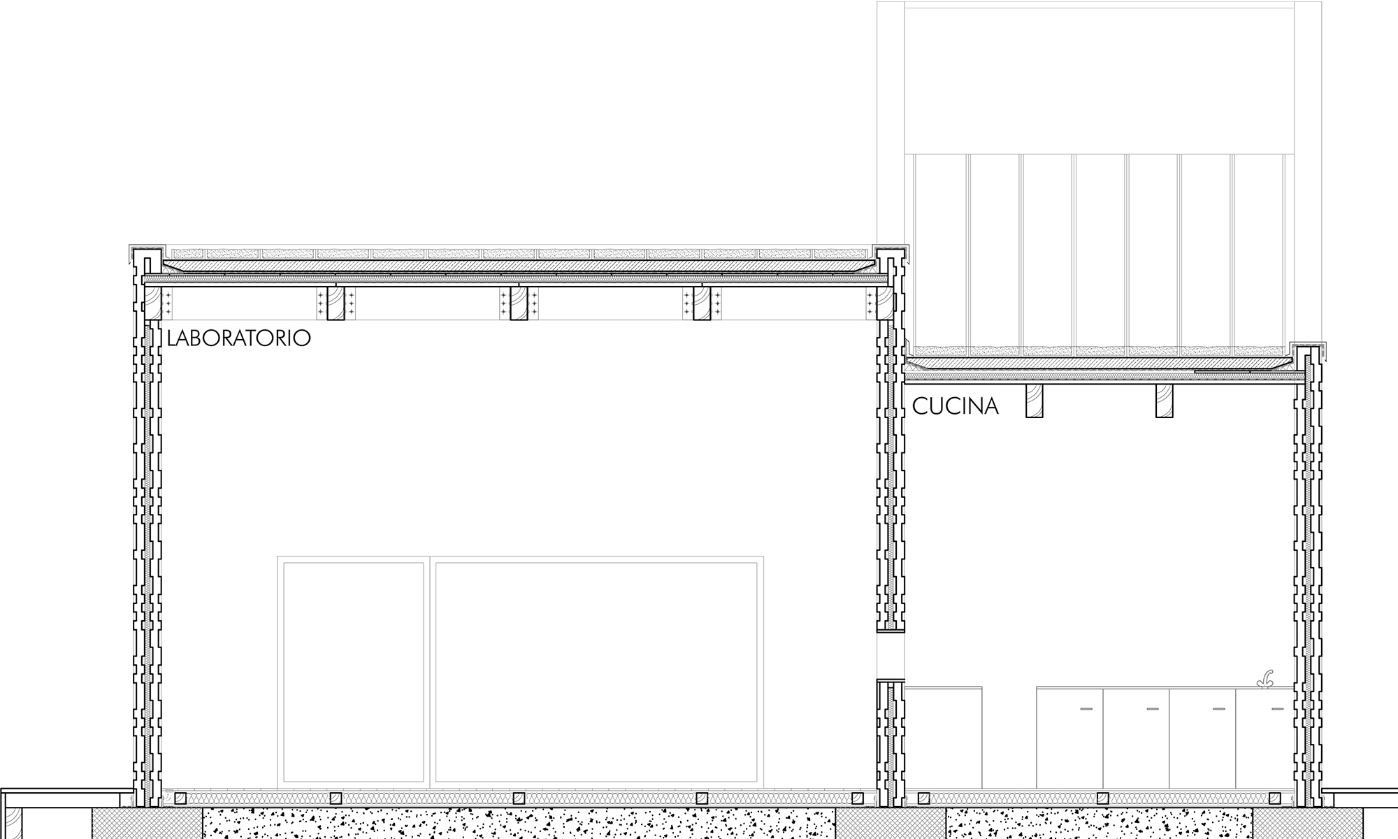
La separazione tra contesto urbano e contesto naturale si concretizza nell'aspetto formale, con il corpo servizi piu introverso, rivolto verso la città e il corpo laboratorio aperto verso la natura, in cui si crea un collegamento visivo tra interno ed esterno attraverso le ampie parti vetrate.

Il rimando simbolico all'archetipo della casa di campagna diventa chiaro nell'attribuzione della funzione, dove il camino appartiene alla cucina rimandando agli spazi di servizio delle case di coloniche.

Il verde diventa parte integrante del sistema compositivo, che si propone di dialogare continuamente con esso, appropriandosene, senza il quale l'edificio sarebbe incompleto.

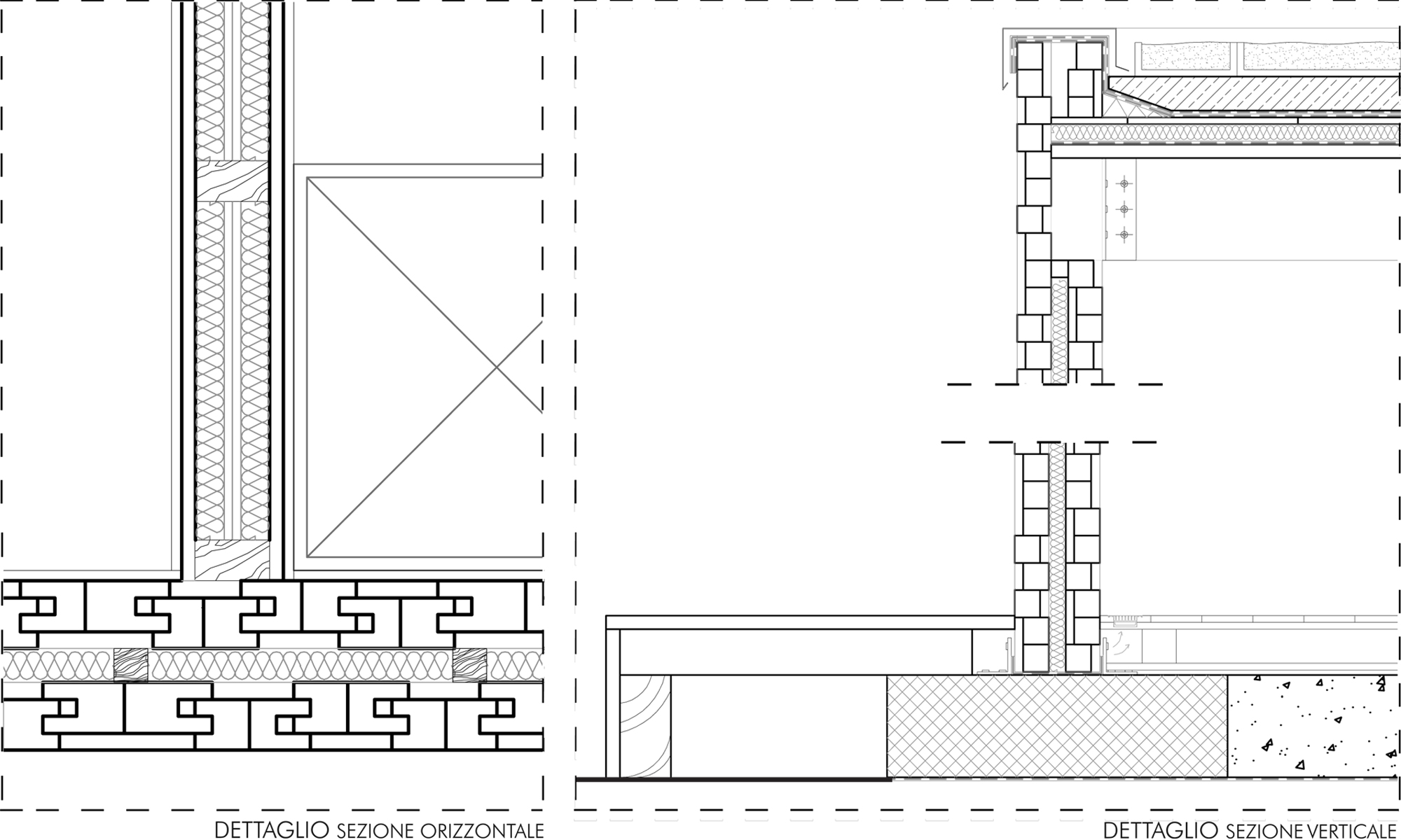
La struttura viene creata con blocchetti di scarto derivanti dalla produzione di serramenti in legno. I blocchetti in legno lamellare, con sezione a C, mantenendo costante altezza e profondita e variando solo in lunghezza, hanno permesso di creare un sistema ad incastro così da comporre una struttura ad elementi sovrapposti. Le fasce così prodotte potranno essere sovrapposte, incollate e inchiodate, sino a raggiungere l'altezza desiderata.
 
GIULIETTA BOGGIO ARCHIDESIGN - P.Iva 07074700969 - studio@gbarchidesign.it
GIULIETTA BOGGIO ARCHIDESIGN
P.Iva 07074700969
studio@gbarchidesign.it