casa ENTROPIA
 
Progetto completo, direzione lavori, arredi
SUPERFICIE 77 mq
LUOGO Milano
CRONOLOGIA Progetto e ralizzazione 2016
IMPRESA DI COSTRUZIONE Costruzioni Italia s.r.l.

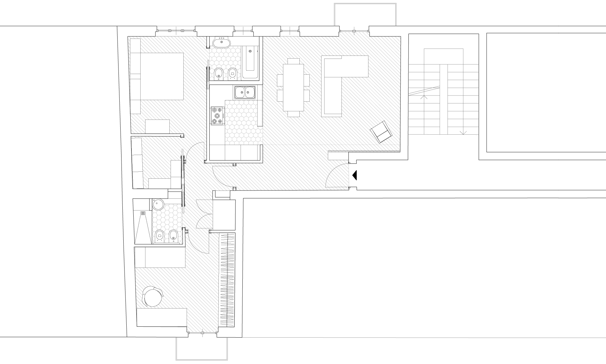
L'appartamento, risultato dalla suddivisione di un'unità su due piani, si trova all'interno di un edificio degli anni '70 nella zona Nord di Milano.

Il progetto realizzato è stato il risultato di una mediazione continua tra diversi fattori. Prima fra tutti la necessità del contenimento di costi e tempi di lavorazione, in secondo luogo la forma irregolare del perimetro dell'appartamento da cui è derivata l'ultima ma non meno importante condizione: l'involontaria presenza di alcune discrepanze tra il progetto ed il realizzato. Tali imprecisioni anzichè essere negate e corrette, sono state integrate nella planimetria "aggiustando" in corsa la distribuzione interna. Si è così raggiunto un equilibrio inaspettato, quasi entropico. Una planimetria organizzata secondo logiche di praticità e vivibilità, in cui si è cercato di dare uno spazio, seppur minimo, a tutte le esigenze del vivere quotidiano.

Gli spazi dedicati alla vita comune rimangono separati rispetto a quelli delle camere da letto.

Nella zona giorno la continuità visiva è preservata. Lo spazio è fluido e si articola liberamente nei diversi ambienti che rimangono però identificati dalla presenza delle soglie disegnate da controsoffitti e pavimenti. Il soggiorno così acquista profondità grazie alla contiguita con ingresso e cucina.

La zona notte invece è organizzata secondo una logica piu tradizionale. Le due camere da letto contrapposte si trovano agli estremi di un disimpegno attrezzato con alcuni arredi tecnici. I bagni sono ridotti al minimo, ma gli spazi vengono sfruttati al massimo.

Nella scelta delle finiture, oltre a mantenere e recuperare gran parte dei pavimenti esistenti, si è deciso di uniformare il piu possibile le soluzioni in modo da garantire continuità e semplicità.

 
GIULIETTA BOGGIO ARCHIDESIGN - P.Iva 07074700969 - studio@gbarchidesign.it
GIULIETTA BOGGIO ARCHIDESIGN
P.Iva 07074700969
studio@gbarchidesign.it