casa CUBO
 
Progetto completo, direzione artistica, arredi
SUPERFICIE 115 mq
LUOGO Milano
CRONOLOGIA Progetto 2011, Realizzazione 2012
IMPRESA DI COSTRUZIONE Costruzioni Italia s.r.l.

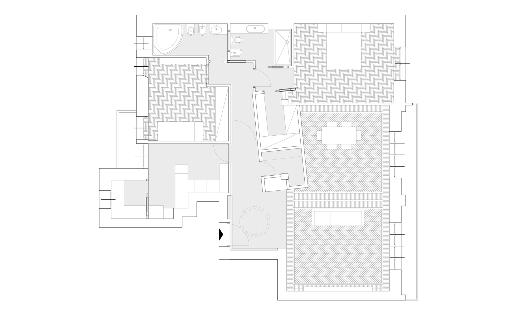
Il progetto ha previsto la ridefinizione completa della distribuzione di un appartamento tradizionale milanese degli anni '50, nell'ottica dell'ottimizzazione e della reinterpretazione degli ambienti originali.

I nuovi spazi vengono definiti e si sviluppano attorno ad un blocco di colore: un parallelepipedo occupato da ripostigli e armadi al centro e le funzioni dell'abitare che si articolano attorno ad esso.

La regolarità degli ambienti originali viene rotta dalla rotazione dell'elemento centrale rispetto all'involucro esterno. La vista si comprime e si dilata nella volontà di dare una maggiore dinamicità allo spazio, coniugando elementi originali e contemporanei.

 
GIULIETTA BOGGIO ARCHIDESIGN - P.Iva 07074700969 - studio@gbarchidesign.it
GIULIETTA BOGGIO ARCHIDESIGN
P.Iva 07074700969
studio@gbarchidesign.it