casa CLACK
 
Progetto completo, direzione lavori
SUPERFICIE 110 mq
LUOGO Milano
CRONOLOGIA Progetto 2013 e ralizzazione 2013-2014
IMPRESA DI COSTRUZIONE Bergamo House s.r.l

Milano, zona vecchia Fiera.
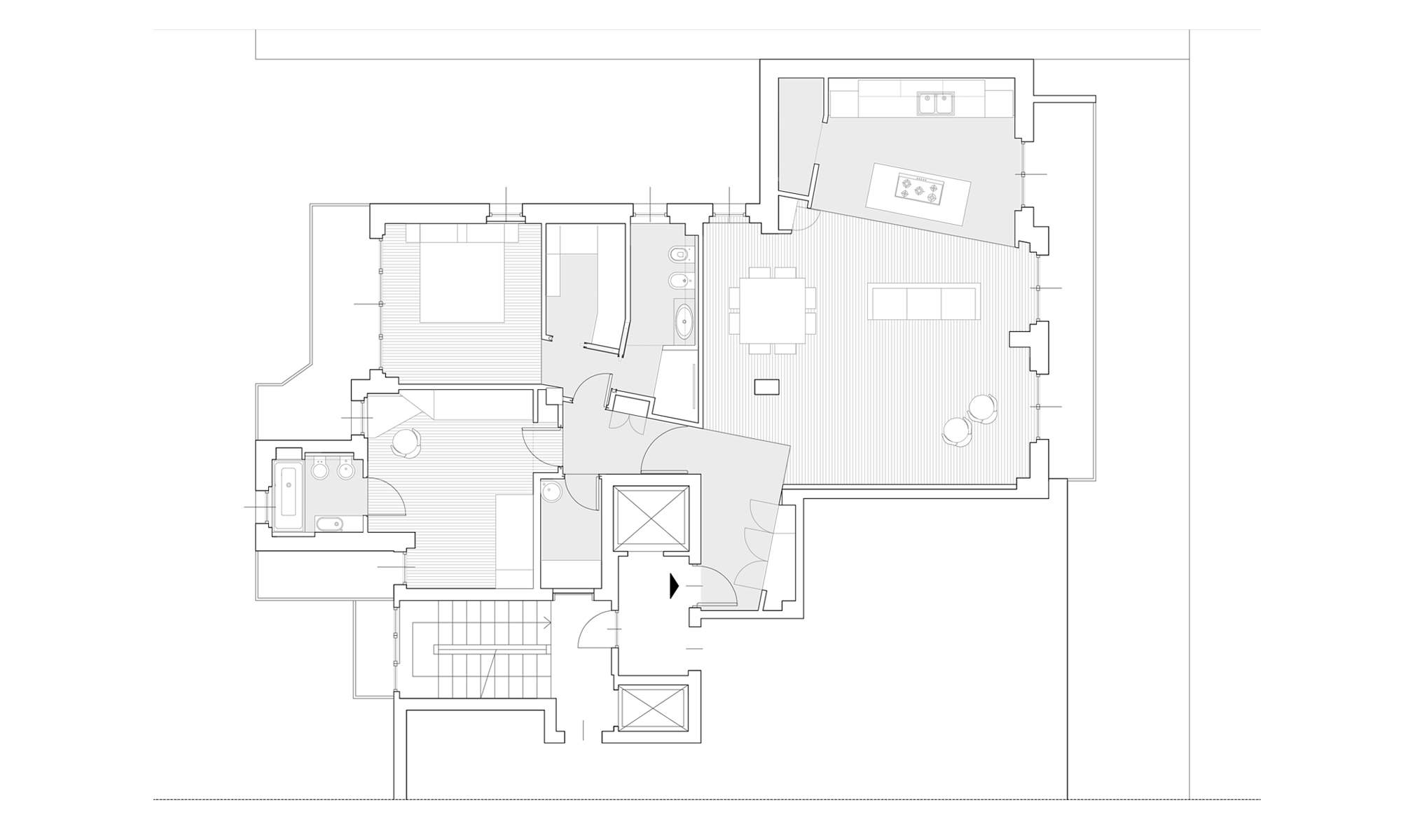
In un edificio degli anni '50 un intervento di ristrutturazione che ha previsto il completo ripensamento della distribuzione interna dell'appartamento con il ribaltamento della pianta originaria. La zona giorno guadagna il fronte su strada mentre le camere da letto si spostano verso l'interno dell'isolato.

L'irregolarità del perimetro viene risolta, oltre che con il disegno puntuale di riquadrature e abbassamenti, con il disassamento delle zone dell'ingresso e della cucina a vista, che come volumi a se stanti, vengono sezionati e si "incastrano" nel grande ambiente del soggiorno.

La scansione dello spazio e la sequenza degli ambienti vengono sottolineate con l'uso dei materiali e dei colori, in un gioco continuo di punti di vista e giustapposizioni.

 
GIULIETTA BOGGIO ARCHIDESIGN - P.Iva 07074700969 - studio@gbarchidesign.it
GIULIETTA BOGGIO ARCHIDESIGN
P.Iva 07074700969
studio@gbarchidesign.it